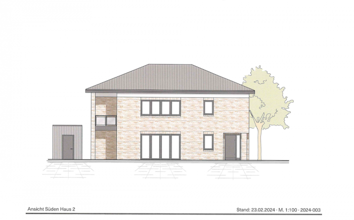
Wohnhaus mit Walmdach in Cloppenburg, Juiststraße 5B + 5C (Haus 2)
469.000,- EUR 49661 Cloppenburg, Juiststraße 5 + 5A - 49661 Cloppenburg, Juiststraße 5B + 5C | Doppelhaus - Neubauwohnung | 113,16m² | 5 ZimmerBeschreibung
Doppelhaus mit Walmdach in Cloppenburg
Lage:
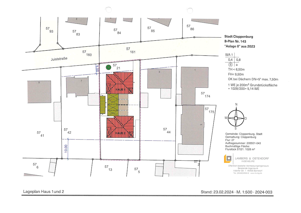
49661 Cloppenburg, Juiststraße 5B + 5C, (Haus 2)
Beschreibung:
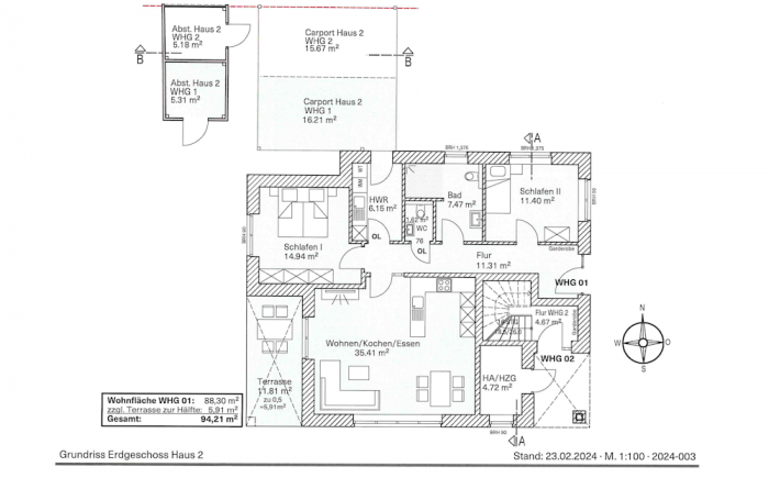
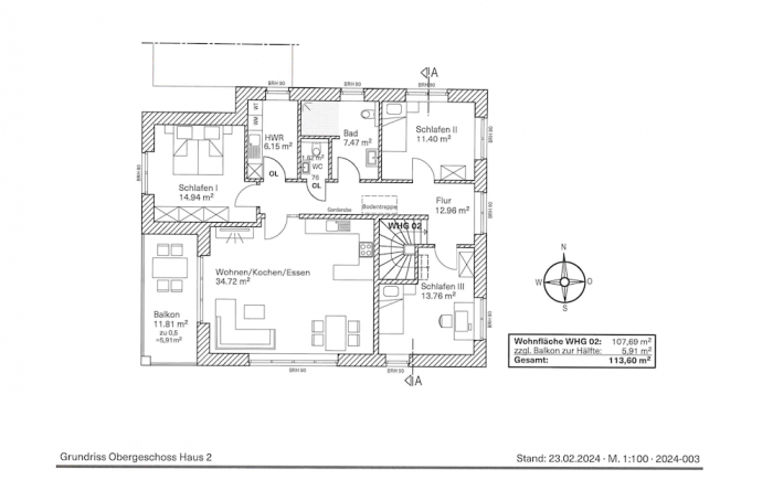
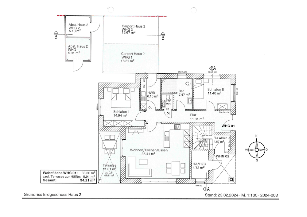
Auf einem 1.028 m² großen Grundstück werden zwei Wohnhäuser mit jeweils zwei großzügigen Wohnungen erstellt.
Ausstattung:
Wohnhaus mit Walmdach. Außenfassade verklinkert, teilweise mit Putzflächen. Außentüren und Fenster aus Kunststoff.
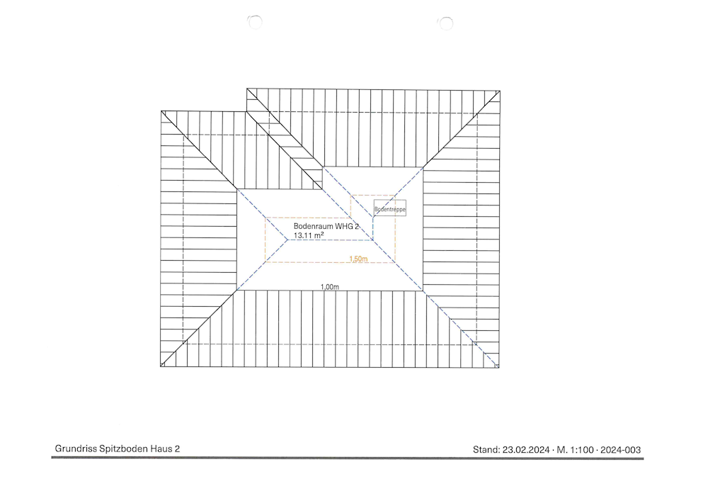
Größe / Aufteilung:
Alle angegebenen Flächen sind nach DIN berechnet. Putzflächen sind entsprechend abgezogen.
Hinweise:
Wohnung Nr. 1 ist verkauft!
Details
| Angebots-ID: | 3016 |
| Kaufpreis: | 469.000,- EUR |
| Zimmer: | 5 |
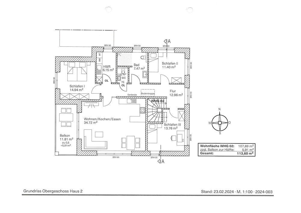
| Wohnfläche: | 113,16 m² |
| Grundstücksfläche: | 1.028 m² |
| Gesamtfläche: | 118,91 m² |
| Baujahr: | Nov 2025 |
| Objektzustand: | NEU |
| Verfügbar ab: | Nov 2026 |
| Sonstige Angaben: | Eigene Wünsche können noch eingebracht werden |
| Im Festpreis nicht enthalten: | * Notar- und Gerichtskosten * Grunderwerbsteuer * Finanzierungskosten * Gartenanlage * Carportanlage * Malerarbeiten * Bodenbelagsarbeiten |
Merkmale
Balkon
Terrasse
Flachdach-Einzelcarport als Holzständerwerk gemäß Zeichnung, zum Mehrpreis von 8.500,00 EUR möglich
Adresse
Hier die genaue Adresse.
Juiststraße 5B + 5C49661 Cloppenburg
Deutschland








