Wohnhaus mit Walmdach in Cloppenburg, Juiststraße 5 + 5A (Haus 1)
389.000,- EUR 49661 Cloppenburg, Juiststraße 5 + 5A | Doppelhaus - Neubauwohnung | 93,91m² | 5 ZimmerBeschreibung
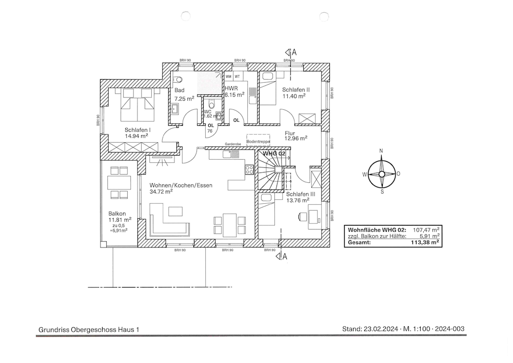
Doppelhaus mit Walmdach in Cloppenburg
Lage/Grundstück:
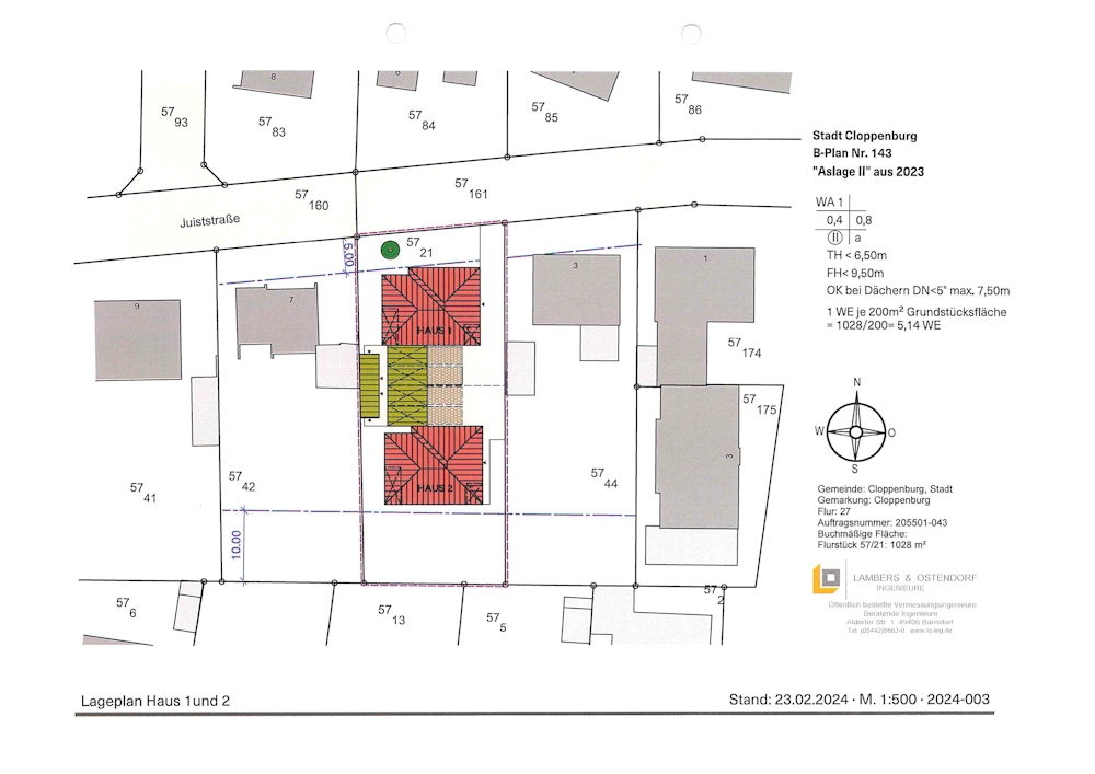
49661 Cloppenburg, Juiststraße 5 + 5A, (Haus 1);
Auf einem 1.028 m² großen Grundstück werden zwei Wohnhäuser mit jeweils zwei großzügigen Wohnungen erstellt.
Objektbeschreibung:
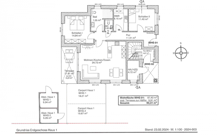
Wohnhaus mit Walmdach. Außenfassade verklinkert, teilweise mit Putzflächen. Außentüren und Fenster aus Kunststoff.
Größe/Aufteilung:
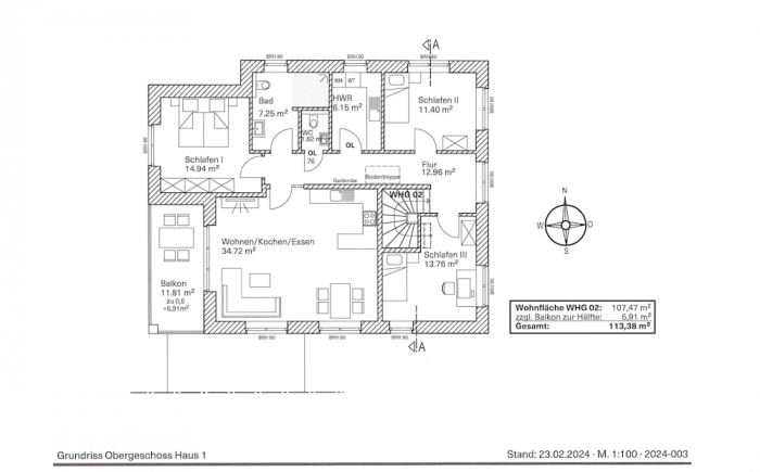
Alle angegebenen Flächen sind nach DIN berechnet. Putzflächen sind entsprechend abgezogen.
Hinweise:
Wohnung Nr. 2 ist verkauft!
Details
| Angebots-ID: | 3014 |
| Kaufpreis: | 389.000,- EUR |
| Zimmer: | 5 |
| Wohnfläche: | 93,91 m² |
| Grundstücksfläche: | 1.028 m² |
| Gesamtfläche: | 99,25 m² |
| Baujahr: | nach Absprache |
| Objektzustand: | NEU |
| Verfügbar ab: | nach Absprache |
| Sonstige Angaben: | Eigene Wünsche können noch eingebracht werden |
| Im Festpreis nicht enthalten: | * Notar- und Gerichtskosten * Grunderwerbsteuer * Finanzierungskosten * Gartenanlage * Carportanlage * Malerarbeiten * Bodenbelagsarbeiten |
Merkmale
Balkon
Flachdach-Einzelcarport als Holzständerwerk gemäß Zeichnung, zum Mehrpreis von 8.500,00 EUR möglich
Adresse
Hier die genaue Adresse.
Juiststraße 5 + 5A49661 Cloppenburg
Deutschland








